Gros - Donostia - San Sebastián Gros
Obra Nueva. Proxima construcción. Local comercial a dos fachadas, plaza cataluña y paseo colon.
- Útiles
- 185m2
- Construidos
- 243m2
- En venta por
- 1.980.000€
PLAZA CATALUÑA. Próxima Construcción.
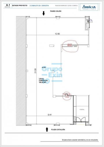
Local comercial de obra nueva a estrenar, con una superficie útil de 184,93 m², ubicado en una zona inmejorable en Plaza Cataluña y Paseo Colón.
El inmueble dispone de doble fachada, lo que le aporta una excelente visibilidad comercial y gran entrada de luz natural. Cuenta además con salida de humos, lo que lo hace ideal para actividades de restauración u otros negocios que lo requieran.
Situado en una de las zonas con mayor tránsito peatonal y proyección comercial, es una oportunidad única para establecer su negocio en un entorno estratégico.
Transparencia y Desglose de Gastos - Locales (Ley 10/2025)En cumplimiento de la Ley 10/2025, de 26 de diciembre, se informa que el precio de venta anunciado no incluye los siguientes impuestos y gastos:
-
Impuestos (ITP o IVA+AJD): La tributación dependerá de la condición fiscal de las partes:
-
ITP: Tipo general del 7% en Gipuzkoa para locales y activos no residenciales.
-
IVA: Tipo del 21% más AJD (Actos Jurídicos Documentados). En todo caso en obra nueva.
-
Nota: En operaciones entre sujetos pasivos de IVA, existe la posibilidad de renuncia a la exención del IVA, permitiendo que la operación tribute por este impuesto en lugar de ITP.
-
Consulta aquí los tipos vigentes: gipuzkoa.eus/es/web/ekonomiaetazergak/iva - gipuzkoa.eus/es/web/ekonomiaetazergak/itp-ajd
-
Notaría y Registro: Honorarios regulados por arancel oficial (RD 1426/1989 y RD 1427/1989). Estimación: entre 0,3% y 0,5% del precio total.
-
Gestoría: Gastos de tramitación documental (aprox. 350 € - 750 € + IVA).
Honorarios de Agencia: Ya incluidos en el precio de venta (a cargo de la parte vendedora).
Características
- Diáfano
Edificio
- Dispone de salida de humos
Extras
- Parada de autobús
Consumo eléctrico
- Consumo
- kwh/m2 año
Emisiones de CO²
- Emisiones
- kgCO2/m2 año
El certificado energético nos da información sobre la calidad de la construcción y equipamiento de una vivienda. Una mejor eficiencia energética le favorece económicamente y es mejor para el medio ambiente.



