Antiguo - Donostia - San Sebastián Antiguo
Antiguo. Local en zona muy comercial de la calle Matía.
- Útiles
- 35m2
- Construidos
- 40m2
- En venta por
- 350.000€
Local EN VENTA en muy buena ubicación, en el barrio del Antiguo, en zona de mucho tránsito peatonal y rodado.
Edificio del año 1997, de estructura de hormigón.
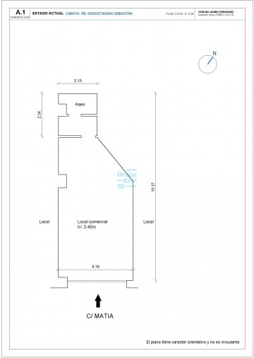
- PLANTA BAJA: Local con escaparate y acceso por la calle Matia. Superficie de 40,00m² construidos - 34,88m² útiles. Distribuido en zona de atención al público, almacén y aseo. Se encuentra en buen estado. Agua caliente mediante termo eléctrico. Climatización frío/calor. Altura de 3,40m a falso techo y de 3,70m a forjado. Carpintería exterior de aluminio.
En cumplimiento de la Ley 10/2025, de 26 de diciembre, se informa que el precio de venta anunciado no incluye los siguientes impuestos y gastos:
-
Impuestos (ITP o IVA+AJD): La tributación dependerá de la condición fiscal de las partes:
-
ITP: Tipo general del 7% en Gipuzkoa para locales y activos no residenciales.
-
IVA: Tipo del 21% más AJD (Actos Jurídicos Documentados). En todo caso en obra nueva.
-
Nota: En operaciones entre sujetos pasivos de IVA, existe la posibilidad de renuncia a la exención del IVA, permitiendo que la operación tribute por este impuesto en lugar de ITP.
-
Consulta aquí los tipos vigentes: gipuzkoa.eus/es/web/ekonomiaetazergak/iva - gipuzkoa.eus/es/web/ekonomiaetazergak/itp-ajd
-
Notaría y Registro: Honorarios regulados por arancel oficial (RD 1426/1989 y RD 1427/1989). Estimación: entre 0,3% y 0,5% del precio total.
-
Gestoría: Gastos de tramitación documental (aprox. 350 € - 750 € + IVA).
-
Honorarios de Agencia: Ya incluidos en el precio de venta (a cargo de la parte vendedora).
Características
- Dado de alta en suministros
Equipamiento
- Calefacción Bomba de calor
- Agua caliente Individual eléctrica
- Aire Acondicionado
Edificio
- Antigüedad En ese año se derribó interiormente el edificio re
- Correcta accesibilidad
- Distribución plantas: Planta baja
Conservación
- Paredes Buen estado
- Puertas Buen estado
- Ventanas Buen estado
- Suelos Buen estado
Extras
- Parada de autobús
Consumo eléctrico
- Consumo
- kwh/m2 año
Emisiones de CO²
- Emisiones
- kgCO2/m2 año
El certificado energético nos da información sobre la calidad de la construcción y equipamiento de una vivienda. Una mejor eficiencia energética le favorece económicamente y es mejor para el medio ambiente.













